Auction House / Wales

  • For Sale By Unconditional Online Auction
  • Guide Price* : £165,000
  • Bidding Opens 11/05/2026 12:00

3 Commercial Road, Machen, Caerphilly, CF83 8NB

Bidding opens Monday 11th May 2026 at Midday and closes Wednesday 13th May 2026 at Midday.

Description

Residential Investment - £11,400 pa Three Bedroom, Semi Detached House

Three bedroom, semi detached house located in the popular village of Machen on the A468. The property is to be sold with the current tenant in situ. Current rent - £950.00 pcm. (£11,400pa).
There are excellent local amenities nearby and links to the larger town of Caerphilly. The property benefits from gas central heating, (not tested) double glazing and gardens to front and rear.

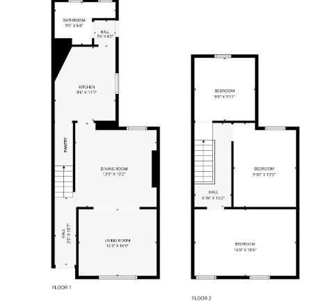
Ground Floor Entrance hall, two reception rooms, kitchen and family bathroom.
First Floor Three bedrooms.
Outside Gardens to front and rear.
Viewings Via Auction House Wales on 01633 212555.
Council Tax Band - C

Tenure: Freehold

EPC Rating: D

Important Notice to Prospective Buyers

We draw your attention to the Special Conditions of Sale within the Legal Pack, referring to other charges in addition to the purchase price which may become payable. Such costs may include Search Fees, reimbursement of Sellers costs and Legal Fees, and Transfer Fees amongst others.

Buyers Premium

£1200 inc VAT payable on exchange of contracts.

Administration Charge

1.2% inc VAT of the purchase price, subject to a minimum of £1200 inc VAT, payable on exchange of contracts.

Loading the bidding panel...

Make An Enquiry

Submit an enquiry for this lot and someone will be in contact shortly.

 
 
 
* Guide | £165,000
  • 3 Bedrooms
  • Unconditional (Immediate Exchange)

Call the team on 01633 212 555 for more information

Disclaimer: The map preview provided above is for general guidance only and may not accurately reflect the exact location or surrounding buildings. Prospective buyers and interested parties are strongly advised to independently verify the precise location and surroundings before bidding.

Note

  1. MONEY LAUNDERING REGULATIONS: Intending purchasers will be asked to produce identification documentation at a later stage and we would ask for your co-operation in order that there will be no delay in agreeing the sale.
  2. General : While we endeavour to make our sales particulars fair, accurate and reliable, they are only a general guide to the property and, accordingly, if there is any point which is of particular importance to you, please contact the office and we will be pleased to check the position for you, especially if you are contemplating travelling some distance to view the property.
  3. Measurements: These approximate room sizes are only intended as general guidance. You must verify the dimensions carefully before ordering carpets or any built-in furniture.
  4. Services: Please note we have not tested the services or any of the equipment or appliances in this property, accordingly we strongly advise prospective buyers to commission their own survey or service reports before finalising their offer to purchase.
  5. THESE PARTICULARS ARE ISSUED IN GOOD FAITH BUT DO NOT CONSTITUTE REPRESENTATIONS OF FACT OR FORM PART OF ANY OFFER OR CONTRACT. THE MATTERS REFERRED TO IN THESE PARTICULARS SHOULD BE INDEPENDENTLY VERIFIED BY PROSPECTIVE BUYERS OR TENANTS. NEITHER AUCTION HOUSE NOR ANY OF ITS EMPLOYEES OR AGENTS HAS ANY AUTHORITY TO MAKE OR GIVE ANY REPRESENTATION OR WARRANTY WHATEVER IN RELATION TO THIS PROPERTY.