Auction House / Wales

  • For Sale By Unconditional Online Auction
  • Guide Price* : £108,000
  • Bidding Opens 08/12/2025 12:00

Forest Retreat Graig Penllyn Village, Cowbridge, Vale of Glamorgan, CF71 7RT

Bidding opens Monday 8th December 2025 at Midday and closes Wednesday 10th December 2025 at Midday.

Description

Bidding opens Monday 8th December 2025 at Midday and closes Wednesday 10th December 2025 at Midday.

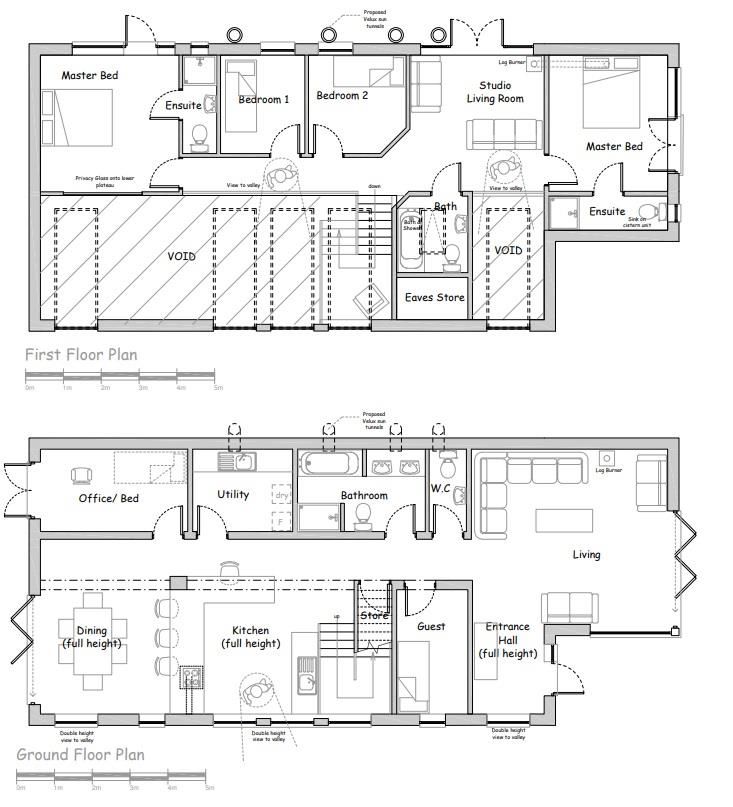
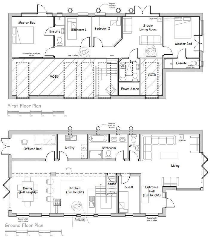
Building Plot With Full Planning For An Executive Detached Dwelling With Additional Land To The Side And Rear

An opportunity to purchase a 0.8acre building plot with full planning for a luxury six bedroom/3-bathroom stylish detached property with additional land to the side and rear (please refer to the plan and legal pack), which may offer scope for further development, subject to all usual consents. We understand that the build has commenced, to include groundworks, foundations, block and beam floor and the rear retaining wall is all complete. However, we understand that the current works carried out have been constructed at a higher level than the agreed planning permission permits. Therefore, the build would need to be altered to accommodate this or alternatively, the current works could be removed and re-instated correctly. We are also advised that the section 106 has been paid. Please refer to the local authority planning portal for further information from reference number 2020/01370/FUL.

Location Graig Penllyn is one of the most popular villages in the Vale with a good mixture of individual properties grouped around local facilities
including the Barley Mow, playing field, tennis courts, playground etc. Although the location is pleasantly rural it is no more than a few
minutes drive into the market town of Cowbridge with more extensive facilities including schooling of excellent reputation for all ages, a
wide range of shops both national and local, sporting and recreational facilities including leisure centre, cricket club, squash club, tennis club
etc. Although situated very much in the heart of the rural Vale of Glamorgan, Graig Penllyn is well placed for commuting to major centres
including the capital city of Cardiff, Newport, Swansea, Bridgend etc.
Viewings Via our partner agent Harris & Birt on 01446 771777.

Tenure: Freehold

Important Notice to Prospective Buyers

We draw your attention to the Special Conditions of Sale within the Legal Pack, referring to other charges in addition to the purchase price which may become payable. Such costs may include Search Fees, reimbursement of Sellers costs and Legal Fees, and Transfer Fees amongst others.

Buyers Premium

£600 inc VAT payable on exchange of contracts.

Administration Charge

1.2% inc VAT of the purchase price, subject to a minimum of £1200 inc VAT, payable on exchange of contracts.

Loading the bidding panel...

Make An Enquiry

Submit an enquiry for this lot and someone will be in contact shortly.

 
 
 
* Guide | £108,000
  • Unconditional (Immediate Exchange)

Call the team on 01633 212 555 for more information

Disclaimer: The map preview provided above is for general guidance only and may not accurately reflect the exact location or surrounding buildings. Prospective buyers and interested parties are strongly advised to independently verify the precise location and surroundings before bidding.

Note

  1. MONEY LAUNDERING REGULATIONS: Intending purchasers will be asked to produce identification documentation at a later stage and we would ask for your co-operation in order that there will be no delay in agreeing the sale.
  2. General : While we endeavour to make our sales particulars fair, accurate and reliable, they are only a general guide to the property and, accordingly, if there is any point which is of particular importance to you, please contact the office and we will be pleased to check the position for you, especially if you are contemplating travelling some distance to view the property.
  3. Measurements: These approximate room sizes are only intended as general guidance. You must verify the dimensions carefully before ordering carpets or any built-in furniture.
  4. Services: Please note we have not tested the services or any of the equipment or appliances in this property, accordingly we strongly advise prospective buyers to commission their own survey or service reports before finalising their offer to purchase.
  5. THESE PARTICULARS ARE ISSUED IN GOOD FAITH BUT DO NOT CONSTITUTE REPRESENTATIONS OF FACT OR FORM PART OF ANY OFFER OR CONTRACT. THE MATTERS REFERRED TO IN THESE PARTICULARS SHOULD BE INDEPENDENTLY VERIFIED BY PROSPECTIVE BUYERS OR TENANTS. NEITHER AUCTION HOUSE NOR ANY OF ITS EMPLOYEES OR AGENTS HAS ANY AUTHORITY TO MAKE OR GIVE ANY REPRESENTATION OR WARRANTY WHATEVER IN RELATION TO THIS PROPERTY.