Purpose Built Detached Three Storey Office Accommodation
An opportunity to acquire a town centre purpose built modern three storey office block, positioned opposite the University Campus. In our opinion, the property would make an ideal investment opportunity or could be utilised for other purposes alongside the two neighbouring properties, which are also being sold as separate lots within the auction, and could form a larger development opportunity, subject to all usual consents.
The building currently benefits from mains gas central heating, double glazed UPVC fenestration, internal lift and staircase as well as an external staircase.
The property is positioned opposite the University of Wales Trinity Saint David Campus, and close to several local shops and amenities, which are within walking distance.
Ground Floor Open reception area, 6 x office rooms, w/c, shower room.
First Floor 3 x office rooms, printing room, w/c.
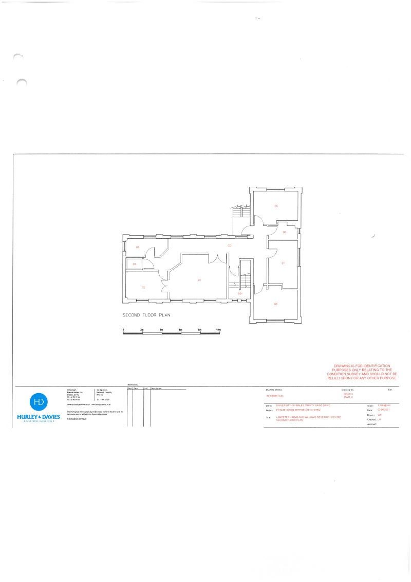
Second Floor 2 x lecture rooms, 4 x office rooms, printing room, kitchen.
Viewings Through our joint Auctioneers Morgan & Davies (Lampeter) on 01570 423623.
Tenure: Freehold
EPC Rating: C
We draw your attention to the Special Conditions of Sale within the Legal Pack, referring to other charges in addition to the purchase price which may become payable. Such costs may include Search Fees, reimbursement of Sellers costs and Legal Fees, and Transfer Fees amongst others.
£600 inc VAT payable on exchange of contracts.
1.2% inc VAT of the purchase price, subject to a minimum of £1200 inc VAT, payable on exchange of contracts.
Call the team on 01633 212 555 for more information
Disclaimer: The map preview provided above is for general guidance only and may not accurately reflect the exact location or surrounding buildings. Prospective buyers and interested parties are strongly advised to independently verify the precise location and surroundings before bidding.
By setting a proxy bid, the system will automatically bid on your behalf to maintain your position as the highest bidder, up to your proxy bid amount. If you are outbid, you will be notified via email so you can opt to increase your bid if you so choose.
If two of more users place identical bids, the bid that was placed first takes precedence, and this includes proxy bids.
Another bidder placed an automatic proxy bid greater or equal to the bid you have just placed. You will need to bid again to stand a chance of winning.