Auction House / Wales

  • For Sale By Unconditional Online Auction
  • Guide Price* : £69,000
  • Auction Ended 22/10/2025
  • Lot 1

Coach House to the rear of 134 Clare Road, Cardiff, CF11 6RW

Bidding opens Monday 20th October 2025 at Midday and closes Wednesday 22nd October 2025 at Midday.

Description

Bidding opens Monday 20th October 2025 at Midday and closes Wednesday 22nd October 2025 at Midday.

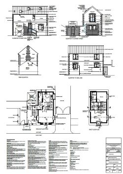
Detached Coach House in Popular Area with Full Planning for Development

An opportunity to purchase a two-storey stone and built detached coach house within a popular location, benefiting from full planning for conversion to a two-bedroom detached house. Further documents and drawings can be accessed from Cardiff Council Planning Portal by using reference number 20/01506/MNR. The property therefore offers an ideal investment/development opportunity.

Positioned directly behind 134 Clare Road but with vehicle access towards the cul-de-sac end of Dorset Street, which makes an ideal location with the City Centre within short walking distance. There are also numerous eateries, local shops and other amenities within Grangetown along with good access to Cardiff Bay and the A4232 and M4.

Current Accommodation Ground Floor: Open Workshop, w/c.
First Floor: Large room, w/c.
Proposed Accommodation Ground Floor: Living Area, kitchen area, cloak w/c.
First Floor: Landing, two bedrooms, shower room w/c.
Outside: Entrance with proposed bin/cycle store.
Viewings Through Auction House Wales on 02920 475184, further information can also be obtained through our partner agents MGY Estate Agents on 029 2039 7152.

Tenure: See Legal Pack

Important Notice to Prospective Buyers

We draw your attention to the Special Conditions of Sale within the Legal Pack, referring to other charges in addition to the purchase price which may become payable. Such costs may include Search Fees, reimbursement of Sellers costs and Legal Fees, and Transfer Fees amongst others.

Buyers Premium

£600 inc VAT payable on exchange of contracts.

Administration Charge

1.2% inc VAT of the purchase price, subject to a minimum of £1200 inc VAT, payable on exchange of contracts.

Loading the bidding panel...

* Guide | £69,000
  • Unconditional (Immediate Exchange)

Call the team on 01633 212 555 for more information

Disclaimer: The map preview provided above is for general guidance only and may not accurately reflect the exact location or surrounding buildings. Prospective buyers and interested parties are strongly advised to independently verify the precise location and surroundings before bidding.

Note

  1. MONEY LAUNDERING REGULATIONS: Intending purchasers will be asked to produce identification documentation at a later stage and we would ask for your co-operation in order that there will be no delay in agreeing the sale.
  2. General : While we endeavour to make our sales particulars fair, accurate and reliable, they are only a general guide to the property and, accordingly, if there is any point which is of particular importance to you, please contact the office and we will be pleased to check the position for you, especially if you are contemplating travelling some distance to view the property.
  3. Measurements: These approximate room sizes are only intended as general guidance. You must verify the dimensions carefully before ordering carpets or any built-in furniture.
  4. Services: Please note we have not tested the services or any of the equipment or appliances in this property, accordingly we strongly advise prospective buyers to commission their own survey or service reports before finalising their offer to purchase.
  5. THESE PARTICULARS ARE ISSUED IN GOOD FAITH BUT DO NOT CONSTITUTE REPRESENTATIONS OF FACT OR FORM PART OF ANY OFFER OR CONTRACT. THE MATTERS REFERRED TO IN THESE PARTICULARS SHOULD BE INDEPENDENTLY VERIFIED BY PROSPECTIVE BUYERS OR TENANTS. NEITHER AUCTION HOUSE NOR ANY OF ITS EMPLOYEES OR AGENTS HAS ANY AUTHORITY TO MAKE OR GIVE ANY REPRESENTATION OR WARRANTY WHATEVER IN RELATION TO THIS PROPERTY.