Auction House / Wales

  • For Sale By Unconditional Online Auction
  • Guide Price* : £18,000
  • Auction Ended 30/07/2025
  • Lot 2

Former St. Johns Church Park Street, Cwmcarn, Caerphilly, NP11 7EL

Bidding opens Monday 28th July 2025 at Midday and closes Wednesday 30th July 2025 at Midday.

Description

Bidding opens Monday 28th July 2025 at Midday and closes Wednesday 30th July 2025 at Midday.

Former Place Of Worship

Substantial, detached, unlisted former place of worship to be sold with vacant possession. The property is located in the village of Cwmcarn just to the north of Risca off the main A467 link road.

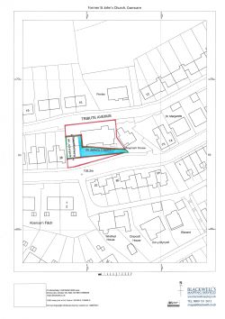
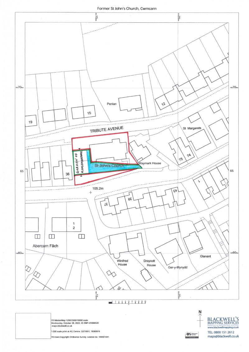
The sale consists of the former church and the grounds shown edged red on the plan. The area shown edged green will be retained by our Client and consists of the Garden of Remembrance and the Accessway (coloured blue on the plan). A pedestrian right of way will be granted to the building will be granted to the purchaser over the Accessway coloured blue. Please refer to the legal pack for further information.

Please be advised the sale is subject to our client's standard covenants which are detailed in the legal pack.

Accommodation There two entrance porches - one at the front of the building, which provides access to the kitchen/utility area and accessible WC, and the other towards the rear which provides access to the main nave.
Outside The building is surrounded by gardens to front, rear and side. NB To the side of the property is the retained Garden of Remembrance and access will continue for visitors at all times.
Viewings Auction House Wales. Please call 01633 212555 to book an appointment.
Tenure Freehold
Planning The property currently falls within planning use D1 of the Use Classes Order. Alternative uses may be possible subject to planning permission. Prospective purchasers must make their own enquiries with the local planning authority if they wish to consider any changes to the use of the building.
Charity Statement As a registered charity (registered charity number:1142813) our client is required to obtain best value in all disposals of property in line with the provisions of the Charities Act 2011 and to ensure that terms are endorsed by a chartered surveyor as being in accordance with the Act.

Tenure: Freehold

Important Notice to Prospective Buyers

We draw your attention to the Special Conditions of Sale within the Legal Pack, referring to other charges in addition to the purchase price which may become payable. Such costs may include Search Fees, reimbursement of Sellers costs and Legal Fees, and Transfer Fees amongst others.

Buyers Premium

£600 inc VAT payable on exchange of contracts.

Administration Charge

1.2% inc VAT of the purchase price, subject to a minimum of £1200 inc VAT, payable on exchange of contracts.

Loading the bidding panel...

* Guide | £18,000
  • Unconditional (Immediate Exchange)

Call the team on 01633 212 555 for more information

Disclaimer: The map preview provided above is for general guidance only and may not accurately reflect the exact location or surrounding buildings. Prospective buyers and interested parties are strongly advised to independently verify the precise location and surroundings before bidding.

Note

  1. MONEY LAUNDERING REGULATIONS: Intending purchasers will be asked to produce identification documentation at a later stage and we would ask for your co-operation in order that there will be no delay in agreeing the sale.
  2. General : While we endeavour to make our sales particulars fair, accurate and reliable, they are only a general guide to the property and, accordingly, if there is any point which is of particular importance to you, please contact the office and we will be pleased to check the position for you, especially if you are contemplating travelling some distance to view the property.
  3. Measurements: These approximate room sizes are only intended as general guidance. You must verify the dimensions carefully before ordering carpets or any built-in furniture.
  4. Services: Please note we have not tested the services or any of the equipment or appliances in this property, accordingly we strongly advise prospective buyers to commission their own survey or service reports before finalising their offer to purchase.
  5. THESE PARTICULARS ARE ISSUED IN GOOD FAITH BUT DO NOT CONSTITUTE REPRESENTATIONS OF FACT OR FORM PART OF ANY OFFER OR CONTRACT. THE MATTERS REFERRED TO IN THESE PARTICULARS SHOULD BE INDEPENDENTLY VERIFIED BY PROSPECTIVE BUYERS OR TENANTS. NEITHER AUCTION HOUSE NOR ANY OF ITS EMPLOYEES OR AGENTS HAS ANY AUTHORITY TO MAKE OR GIVE ANY REPRESENTATION OR WARRANTY WHATEVER IN RELATION TO THIS PROPERTY.